Bereits im Jahre 2016 wurde seitens der Feuerwehr Raisdorf ein Raumkonzept mit einem Funktionsplan für die neue Wache erstellt. In der Einleitung kann man lesen:
„Die Freiwillige Feuerwehr (FF) Raisdorf der Stadt Schwentinental soll ein zukunftsweisendes Gebäude bekommen, das den gewachsenen Aufgaben der Feuerwehr Raisdorf gerecht wird und auch für die Zukunft auf die gestiegenen funktionalen Anforderungen, eine Erweiterung des Aufgabenspektrums sowie der Technik und der Fahrzeuge vorbereitet ist.
Die Freiwillige Feuerwehr Raisdorf ist eine „bunt gemischte Truppe“ aus Männern und Frauen, die sich in ihrer Freizeit 365 Tage im Jahr rund um die Uhr für die Sicherheit der Menschen einsetzt. Ob Elektriker, Ingenieur, Kaufmann oder Rettungsassistent – in den Einsätzen stehen die Feuerwehrleute oft vor Situationen, für die es keine Lehrbuchlösungen gibt und in denen die unterschiedlichsten Erfahrungen aller Einsatzkräfte hilfreich sind.
Die Mitglieder der FF Raisdorf üben ihren Dienst mit Stolz und Freude daran, den Mitmenschen zu helfen, aus. Dieses Selbstverständnis schmiedet sie zu einer Gemeinschaft zusammen, die gepflegt wird und die dank einer intensiven Jugendarbeit sich kontinuierlich erneuert. Heute zählt die Feuerwehr Raisdorf 30 Mitglieder der Jugendfeuerwehr.
Perspektivisch richtet sich die FF Raisdorf auf einen Bestand an aktiven Mitgliedern von etwa 76 Feuerwehrleuten und 30 Jugendlichen ein mit einem steigenden Anteil an Frauen. Die FF Raisdorf ist einem stetigen Wandel unterworfen. Neben der Errichtung eines neuen Feuerwehrhauses wird auch der Fahrzeugbestand stetig erneuert und den Anforderungen an eine moderne Feuerwehr angepasst. Mit einem wachsenden Team an Einsatzkräften werden sich auch die Aktivitäten der Mitglieder und der Bedarf an kontinuierlichen Schulungen steigern.
Das Raum- und Funktionsprogramm berücksichtigt diese Veränderungen und definiert einen ausgewogenen Rahmen im Hinblick auf Funktionalität, Effektivität und Wirtschaftlichkeit sowie Offenheit und Flexibilität für künftige Entwicklungen.“
Die neue Wache wurde in zwei Funktionsbereiche unterteilt: „Einsatz und Technik“ und „Verwaltung, Schulung und Gemeinschaft“.
Die Planungen des Architekten, Herrn Neu und seinem Team, setzten auf diesen Grundlagen auf und führten zu einem Entwurf, der in mehreren Runden immer weiter optimiert wurde.
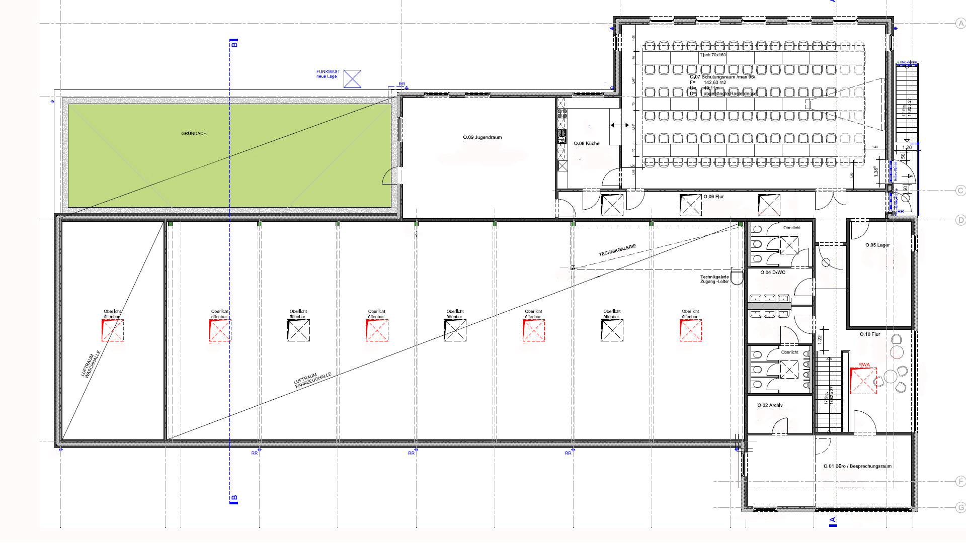
Die neue Wache besteht im Erdgeschoß aus einer Fahrzeughalle mit sieben Stellplätzen sowie einer angrenzenden Waschhalle. Um diese Halle herum gliedern sich alle einsatztechnisch relevanten Funktionsräume: Eine Funkzentrale mit angrenzendem Lagebesprechungsraum, ein Bereitschaftsraum für Kameraden in Einsatzschutzkleidung, sowie die Umkleideräume und Sanitäranlagen für weibliche und männliche Kameraden. Im hinteren Bereich finden sich die Werkstätten sowie diverse Lagerräume.
Im Obergeschoß, welches nicht mit Einsatzschutzkleidung betreten werden soll (sog. Schwarz-Weiß-Trennung) befindet sich der große Schulungsraum mit angrenzender Küche. Außerdem findet hier die Jugendfeuerwehr ihren Platz mit einem „eigenen“ Jugendraum für die Jugendarbeit. Weiterhin sind hier ein Büro und weitere Archiv und Lagermöglichkeiten sowie eine WC-Anlage vorgesehen.


